Cookie Consent by Free Privacy Policy Generator
FREP Savjetovanje d.o.o.
PRODANO
3 763 953,00 HRK / 492 020,00 EUR

Lokacija: Primorsko-goranska, Opatija, Opatija - Centar
Tip stana: u stambenoj zgradi
Broj etaža: jednoetažni
Broj soba: 4-sobni
Kat: Prizemlje
Ukupni broj katova: 3.
Stambena površina: STAN 119,28 m2 i pripadaka 15,53m2
Netto površina:  119,28 m2
Godina izgradnje: 2020.
Namještenost i stanje: Nenamješten
Broj parkirnih mjesta: 2
Balkon/Lođa/Terasa: Balkon, Terasa
Energetski razred: A
Mogućnost zamjene: nije moguća zamjena za drugu nekretninu
Agencijska provizija: kupac plaća agencijsku proviziju 1,00%
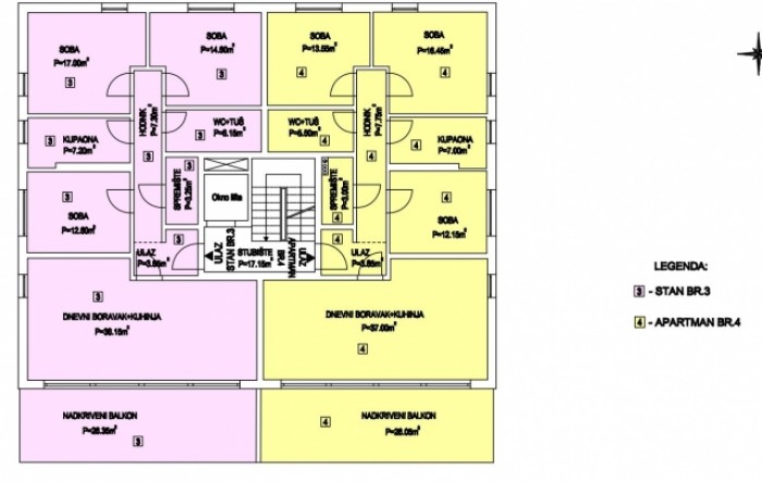
Stanovi se nalazi u mirnom dijelu Opatije, u blizini svih sadržaja sa otvorenim pogledom na more sa svih etaža novoizgrađene zgrade sa ukupno šest stanova. Sastoji se od ulaza, dnevnog boravka + kuhinje, nadkrivenog balkona, hodnika, 3 (tri) sobe, spremišta, kupaone, wc + tuš, na 1. katu zgrade te pripadaka: 2 parkirna mjesta i drvarnica u podrumu zgrade, sve označeno brojem 4 i žutom bojom. Ukupna površina apartmana iznosi 119,28m2 *, a pripadaka 15,53m2* . Sveukupna površina posebnog dijela iznosi 134,80. Stanovi u prizemlju imaju dio okućnice na korištenje. Svaki stan ima sustav grijanja na dizalicu topline s podnim grijanjem (oprema Daikin) te feincoilere za sustav hlađenja, kvalitetnu aluminijsku stolariju s velikim staklenim stijenama i električnim upravljanjem roleta. U svim prostorijama osim kupaonica podne obloge su prvoklasni parketi većih dimenzija dok su u kupaonicama pločice. Terase su ograđene staklenim ogradama. U garaži su ugrađena vrata marke Hormann. Stanovima u prizemlju pripada dio okućnice na korištenje dok svim stanovima pripada zajednički vanjski bazen sa sunčalištem. Zgrada ima lift i građena je kvalitetnim materijalima. Cijena je 3.650 €/m² do 3.800€/m2. Navedena cijena je s pripadajućim PDV-om, a kupac ne plaća porez na promet nekretnine.
Grijanje
  • sustav grijanja: sustav grijanja, klimatizacije i ventilacije
  • alternativni izvori energije: toplinske pumpe

Podaci o objektu
  • novogradnja
  • lift
  • pristup za osobe s invaliditetom
  • gradski vodovod
  • gradska kanalizacija

Dozvole
  • vlasnički list
  • građevinska dozvola
  • uporabna dozvola

Vrsta parkinga
  • garažno mjesto

Funkcionalnosti i ostale karakteristike
  • zasebni ulaz u objekt
  • protuprovalna vrata
  • video portafon
  • električne rolete
  • tuš kabina
  • podno grijanje

Orijentacija stana
  • sjever
  • jug
  • istok

Kupaonica i WC
  • broj kupaonica s WC-om: 2

Ostali objekti i površine
  • dvorište/vrt
  • bazen
FREP Savjetovanje d.o.o.
FREP Savjetovanje d.o.o.
FREP Savjetovanje d.o.o.
Stan
Prodaja
FREP Savjetovanje d.o.o.
FREP Savjetovanje d.o.o.
FREP Savjetovanje d.o.o.
Apartman
Prodaja
FREP Savjetovanje d.o.o.
FREP Savjetovanje d.o.o.
Stan
Prodaja
FREP Savjetovanje d.o.o.
FREP Savjetovanje d.o.o.
Poslovni prostor
Najam
FREP Savjetovanje d.o.o.
FREP Savjetovanje d.o.o.
Stan
Prodaja
FREP Savjetovanje d.o.o.
FREP Savjetovanje d.o.o.
Apartman
Prodaja
FREP Savjetovanje d.o.o.
FREP Savjetovanje d.o.o.
Stan
Prodaja
FREP Savjetovanje d.o.o.
FREP Savjetovanje d.o.o.
FREP Savjetovanje d.o.o.
Apartman
Prodaja
FREP Savjetovanje d.o.o.
FREP Savjetovanje d.o.o.
Apartman
Prodaja
FREP Savjetovanje d.o.o.
FREP Savjetovanje d.o.o.
Zemljište s odmaralištem
Prodaja
FREP Savjetovanje d.o.o.
FREP Savjetovanje d.o.o.
FREP Savjetovanje d.o.o.
Apartman
Prodaja
FREP Savjetovanje d.o.o.
FREP Savjetovanje d.o.o.
Apartman
Prodaja
FREP Savjetovanje d.o.o.
FREP Savjetovanje d.o.o.
FREP Savjetovanje d.o.o.
Građevinsko zemljište
Prodaja
FREP Savjetovanje d.o.o.
FREP Savjetovanje d.o.o.
FREP Savjetovanje d.o.o.
Stan
Prodaja
FREP Savjetovanje d.o.o.
FREP Savjetovanje d.o.o.
FREP Savjetovanje d.o.o.
Stan
Prodaja
FREP Savjetovanje d.o.o.
FREP Savjetovanje d.o.o.
FREP Savjetovanje d.o.o.
Apartman
Prodaja
FREP Savjetovanje d.o.o.
FREP Savjetovanje d.o.o.
Apartman
Prodaja
FREP Savjetovanje d.o.o.
FREP Savjetovanje d.o.o.
Sportsko-turistički centar
Prodaja
FREP Savjetovanje d.o.o.
FREP Savjetovanje d.o.o.
FREP Savjetovanje d.o.o.
Stan
Prodaja
FREP Savjetovanje d.o.o.
FREP Savjetovanje d.o.o.
Kuća
Prodaja
FREP Savjetovanje d.o.o.
FREP Savjetovanje d.o.o.
Poslovni prostor
Najam
FREP Savjetovanje d.o.o.
FREP Savjetovanje d.o.o.
Stan
Prodaja
FREP Savjetovanje d.o.o.
FREP Savjetovanje d.o.o.
Stan
Prodaja
FREP Savjetovanje d.o.o.
FREP Savjetovanje d.o.o.
FREP Savjetovanje d.o.o.
Stan
Prodaja
FREP Savjetovanje d.o.o.
FREP Savjetovanje d.o.o.
FREP Savjetovanje d.o.o.
Stan
Prodaja
FREP Savjetovanje d.o.o.
FREP Savjetovanje d.o.o.
FREP Savjetovanje d.o.o.
Poslovni prostor
Najam
FREP Savjetovanje d.o.o.
FREP Savjetovanje d.o.o.
Građevinsko zemljište
Prodaja
KONTAKT
FREP Savjetovanje d.o.o.
Trnovčica 29
HR-10040 Zagreb
info@frep-savjetovanje.hr
ČLANOVI SMO:
FREP Savjetovanje d.o.o. FREP Savjetovanje d.o.o.
PARTNERI
FREP Savjetovanje d.o.o.
FREP Savjetovanje d.o.o.
FREP Savjetovanje d.o.o.
© 2024 FREP Savjetovanje d.o.o.
CLOSE
Početna
O nama
Financiranje
Nekretnine
Kontakt
Hr  /  En